Croquis para Permisos en Puerto Rico

Croquis para Permisos de Uso | Permiso Unico OGPe 

💵Costo: $300.00

Diseño de Croquis en Puerto Rico

Croquis #1

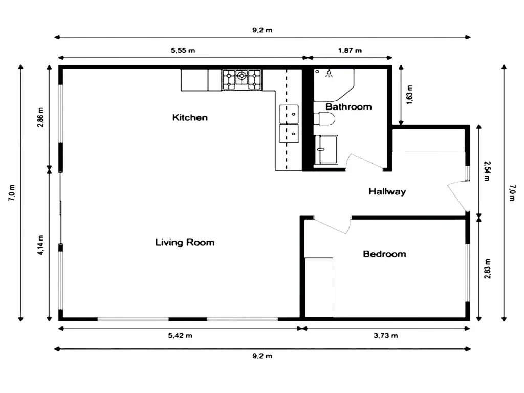
El Croquis es un diseño conceptual preliminar que brinda una visualización breve del aspecto del proyecto. Luego que el Croquis es aprobado se procede al diseño formal del plano final.

Para mas información: 📞 (787)598-0627